2 Pieces Confortable, Skis Aux Pieds, Proche Commerces, 4 Pers, Balcon, Tv - Fr-1-182A-27
Тільки попередній перегляд — перегляньте всі фото готелю.
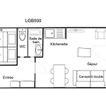
Переглянути всі 25 фото
Готель на карті
2 Pieces Confortable, Skis Aux Pieds, Proche Commerces, 4 Pers, Balcon, Tv - Fr-1-182A-27
Є кілька туристичних об'єктів, таких як Лижний підйомник «Envolee», розташованих приблизно за 25 хвилин ходьби від апартаментів 2 Pieces Confortable, Skis Aux Pieds, Proche Commerces, 4 Pers, Balcon, Tv - Fr-1-182A-27 Courchevel.
Серед визначних пам'яток, які варто відвідати, - Мерібель, який знаходиться в 10 хвилинах їзди від апартаментів. До центру Куршавеля можна дійти пішки за 20 хв. На відстані 4.2 км від апартаментів 2 Pieces Confortable, Skis Aux Pieds, Proche Commerces, 4 Pers, Balcon, Tv - Fr-1-182A-27 знаходиться Куршевель 1650.
До послуг гостей цього помешкання зручні умови для самостійного приготування їжі, включаючи повністю обладнану кухню з електрочайником, посудомийною машиною і духовкою. Апартаменти розташовані поблизу від Troika. Для підтримки спортивного режиму надається доступ до поля для гольфу.
Зручності
Основні зручності
- Проживання з дітьми
- Розміщення з домашніми тваринами не дозволяється
Зручності
- Куріння на території заборонено
- Розміщення з домашніми тваринами заборонено
- Камера зберігання лижного обладнання
- Ліфт
- Електрочайник
- Кухонне приладдя
- Катання на лижах
- Обідній стіл
- Дитячі ліжечка
Правила
Карта
Визначні місця
Визначні місця
- Les 3 Vallées (3.7 км)
Аеропорти
- Аннесі Аеропорт (98 км)
Відгуки
100% перевірені відгуки